Tieflader Auflieger - vermietung möglich Meusburger 3-Achs-Tele-Semi mit 1 Paar Radmulden und hydr. Rampen
Inseriert: 24Tg.
Inseriert: 24Tg.
Leasing
Auf Anfrage erhältlichZu jedem gebrauchten Auflieger erhalten Sie einen aktuellen & vollständigen Inspektions- und Funktionsbericht.
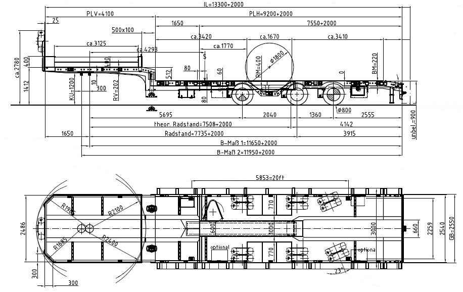
Fahrgestell:
-Stabile Stahlrahmenschweißkonstruktion mit vorderer Rahmenkröpfung und ebener Ladefläche --mit Abschrägung hinten ca. 500x100 mm
-Rahmenhals 200 mm mit abgeschrägten Ecken vorne
-Schräge Ende Schwanenhals ca. 500 x 100 mm (Steigrippen auf Außenrahmen im Bereich hintere Abschrägung)
-2 Königszapfenstellungen mit auswechselbarem 2“-Königszapfen
-Außenrahmen nach außen geschlossen als Lochaußenrahmen
-Ladefläche mit ausziehbarem Zentralrahmen, ausziehbar um ca. 2.000 mm je 500 mm pneumatisch verriegelbar
-Rahmen vor und nach Teilung mit Stufe 80x80mm
-Verstärkter Rahmenausführung / Punktlast im eingeschobenen Zustand im Schwerpunkt
-Ohne ausziehbare Verbreiterungen in der Ladefläche, jedoch vorbereitet zur nachträglichem Montage (=Führungsrohre im Rahmen eingeschweißt)
-Mit Baggermulde (ohne Abdeckung), Tiefe ca. 220 mm, Breite ca. 600 mm, ca. nach 2. Achse beginnend bis Ende Fahrzeug
-1 Paar Radmulden zwischen 1. und 2. Achse Stahlabdeckungen (Abdeckungen mit -Körapurbeschichtung), Tiefe ca. 400 mm
-Unterfahrschutz = verlängertes Abschlussblech
-Fallhubstützen hinten
Rampen:
-2 Stück 2-teilige Auffahrrampen in Sonderausführung mit mechanischer Streckung
-Länge ca. 2.850 mm plus 1.850 mm, mit hydraulischem Rampenhebewerk (nur in Verbindung mit Elektrohydraulikaggregat)
-Breite ca. 800 mm
-Holzbelag
-Inkl. Steigrippen auf Auffahrrampen
-In Fahrtstellung mit Spanngurten arretierbar
-Betätigung mittels Steuerhebel hinten in FR rechts montiert
-Seitlich hydraulisch verschiebbar
Boden:
-35 mm Lärchen-Holzboden mit Alu-Omega-Profilen
Stützwinden:
-Mech. 24 to Stützwinden mit 1-Seiten-Bedienung und Schubausgleich
Achsen, Lenkung und Bereifung:
-BPW-Luftfeder-Achsen, je 10 to Achslast, Balg-Durchmesser 360 mm
-S-Nockenbremse 300/200 mm, asbestfreie Bremsbeläge
-Automatischer Gestängesteller
-Hub- und Senkeinrichtung mit Gesamthub ca. 200 mm
-2. Fahrtstellung über Kugelhahn +50mm
-1. Achse Liftachse (über EBS verkabelt), Bestätigung vollautomatisch mit mechanischer Notbetätigung über Taster am Auflieger
-3. Achse als reibungsgelenkte Nachlaufachse mit elektrischer und mechanischer Sperre
-12 Stahlscheibenräder, 10-Loch, mit Einpresstiefe mittenzentriert
-12 Reifen 245/70 R 17,5 143/141J, schlauchlos
-Inklusive Reifendrucküberwachung
Kotflügel:
-Blechkotflügel mit Clear-Pass
Bremsanlage:
-Zweileiterbremse mit EBS-E inkl. RSS
-EBS (WABCO 4S3M)
-Federspeicherfeststellbremse
-Luftanschluss gelb / rot
Elektroausstattung:
-Gemäß KZF-Gesetz
-24 Volt. 2x 7-polige und 1x 15-polige Steckdosen
-2 Stück Mehrkammer-Schlussleuchten im Abschlussblech
-Seitliche Markierungsleuchten
-1 ausziehbare Halterung für Rundumleuchte
-1 Stück 7-polige Steckdosen an Abschlussblech hinten für Überhangbeleuchtung
Lackierung:
-Stahlgranulatreinigung, Spritzverzinkung des Fahrgestelles und Grundierung
-Lackierung Fahrgestell/Radnaben/Außenrahmen in DB 7350 Novagrau
-Kunststoffteile schwarz unlackiert
-Felgen: werksilber
-Reflexstreifen seitlich und hinten in gelb
Zubehör:
-Auf dem Schwanenhals Bordwände und Rückwand steckbar ca. 400 mm hoch
-Reserveradhalterung
-Seitlicher Alu-Anfahrschutz
-4 Unterlegkeile samt Halterung
-Längliche Kennzeichenhalterung im Abschlussblech
-1 ECE-Tafel am Heck steckbar
-11 Paare ZK-Module 10t seitlich:
-2x auf dem Schwanenhals
-2x auf der Ladefläche vor dem Auszug
-7x nach dem Auszug
-Ohne Abschleppringe hinten
-Ausziehbare Warntafeln inkl. je 3 Stück Positionslampen, vorne an Sattelstützwinden und hinten vor Abschlussblech, stufenlos ausziehbar bis Ladebreite 4.500 mm
-4 Stück in Rungentaschen auf der Ladefläche steckbare Aufnahmen für Warntafeln
-6 Paare Rungentaschen seitlich für Steckrungen 100x50 mm
-2 Stück Rungentaschenquerreihen für Steckrungen 100x50 mm auf Schwanenhals von -Außenrahmen nach innen bis zum Hauptrahmen (1x vor- und 1x nach Königszapfenpositionen)
-3 Stück Rungentaschenquerreihen für Steckrungen 100x50 mm auf der Ladefläche von Außenrahmen nach innen bis zum Hauptrahmen (1x vor dem Auszug, 1x nach dem Auszug und 1x nach 3. Achse)
-2 Paar Stahlplatten in der Ladefläche für Containerverrieglungen zur Aufnahme von 1x 20ft Container
-Gummi-Schürze auf Unterfahrschutz montiert
-Vorbereitung (=Leitungsverlegung NATO-Kabel sowie Lochbild für nachträgliche Montage NATO Dose vorne am Abschlussblech sowie Halter am Fahrzeug) zur nachträglichen Monate Elektrohydraulikaggregat in Fahrtrichtung rechts hinten für evtl. Bedienung Auffahrrampen
Dieses Angebot dient nur Informationszwecken. Bitte bestätigen Sie die Details direkt beim Verkäufer.
Nachdem Sie ein interessantes Fahrzeug auf Truck1.eu identifiziert haben, haben Sie die Möglichkeit, den Verkäufer entweder über das Kontaktformular zu erreichen oder den Händler direkt über die angegebene Telefonnummer anzurufen. Wählen Sie die Methode, die am besten zu Ihren Vorlieben passt.
Wenden Sie sich an den Verkäufer, um weitere Informationen über die Verfügbarkeit des Fahrzeugs, den technischen Zustand und den aktuellen Preis zu erhalten, da Anzeigen möglicherweise nicht immer vollständige Details bieten. Fragen Sie zusätzlich nach aktuellen Wartungsunterlagen oder Inspektionsberichten, um ein klareres Bild vom aktuellen Zustand des Fahrzeugs zu erhalten.
Nutzen Sie die Vergleichsfunktion von Truck1, um ähnliche Fahrzeuge zu bewerten. Dies wird Ihnen helfen einzuschätzen, ob der geforderte Preis wettbewerbsfähig ist und mit den Markttrends übereinstimmt. Suchen Sie nach Mustern in Preisgestaltung und Funktionen, um eine fundierte Entscheidung zu treffen.
Beim Online-Kauf eines Fahrzeugs ist es wichtig, den Ruf des Verkäufers zu überprüfen, indem Sie nach positiven Bewertungen und einer Geschichte erfolgreicher Transaktionen suchen. Die „Händlerstatus“-Symbole von Truck1 bieten wertvolle Einblicke basierend auf Erfahrungen mit dem Händler und helfen, die Zuverlässigkeit des Verkäufers zu beurteilen.
Wenn möglich, sollten Sie es priorisieren, den Verkäufer zu besuchen und das Fahrzeug persönlich zu inspizieren. Wenn möglich, arrangieren Sie eine Kaufvorinspektion des Fahrzeugs durch eine Drittpartei. Dies kann potenzielle Probleme aufdecken, die auf Fotos nicht sichtbar oder in der Anzeige nicht erwähnt sind.
Stellen Sie sicher, dass Sie einen detaillierten Kaufvertrag unterzeichnen, um Ihre Rechte zu schützen und die Bedingungen der Transaktion zu bestätigen.
Fahren Sie mit der Zahlung erst fort, nachdem der Kaufvertrag unterzeichnet wurde. Eine kleine Anzahlung zur Reservierung des Fahrzeugs ist üblich, sollte jedoch mit Vorsicht vorgenommen werden.
Bestätigen Sie die Echtheit des Verkäufers, indem Sie detaillierte Informationen sammeln und Bewertungen oder Berichte von früheren Käufern prüfen. Suchen Sie nach Händler-Icons auf Truck1, um verifizierte Verkäufer zu identifizieren und ein sichereres Kauferlebnis zu gewährleisten.
Vergleichen Sie die Preise ähnlicher Fahrzeuge mit dem Vergleichstool, um ungewöhnliche Angebote zu identifizieren. Seien Sie vorsichtig bei Preisen, die erheblich vom Marktstandard abweichen, da sie auf mögliche Probleme oder Betrug hinweisen könnten.
Bitten Sie den Verkäufer um Details zur Fahrzeughistorie und zu den Nutzungsbedingungen. Ein seriöser Verkäufer wird transparent sein und bereit, diese Informationen zu teilen, um Ihnen zu helfen, zu beurteilen, ob das Fahrzeug Ihren Anforderungen entspricht.
Vereinbaren Sie eine Besichtigung und Probefahrt des Fahrzeugs, um Abnutzungserscheinungen oder Schäden zu erkennen. Ziehen Sie eine Vorabinspektion durch einen professionellen Mechaniker in Betracht, um versteckte Probleme aufzudecken und die Sicherheit und Zuverlässigkeit des Fahrzeugs zu gewährleisten.
Stellen Sie vor jeder Transaktion sicher, dass eine detaillierte Verkaufsvereinbarung vorliegt, die alle Bedingungen festlegt. Verwenden Sie sichere Zahlungsmethoden und überprüfen Sie die Transaktionsdetails, um sich vor Betrug zu schützen.
Leasing
Auf Anfrage erhältlich
Dieses Angebot dient nur Informationszwecken. Bitte bestätigen Sie die Details direkt beim Verkäufer.
Nachdem Sie ein interessantes Fahrzeug auf Truck1.eu identifiziert haben, haben Sie die Möglichkeit, den Verkäufer entweder über das Kontaktformular zu erreichen oder den Händler direkt über die angegebene Telefonnummer anzurufen. Wählen Sie die Methode, die am besten zu Ihren Vorlieben passt.
Wenden Sie sich an den Verkäufer, um weitere Informationen über die Verfügbarkeit des Fahrzeugs, den technischen Zustand und den aktuellen Preis zu erhalten, da Anzeigen möglicherweise nicht immer vollständige Details bieten. Fragen Sie zusätzlich nach aktuellen Wartungsunterlagen oder Inspektionsberichten, um ein klareres Bild vom aktuellen Zustand des Fahrzeugs zu erhalten.
Nutzen Sie die Vergleichsfunktion von Truck1, um ähnliche Fahrzeuge zu bewerten. Dies wird Ihnen helfen einzuschätzen, ob der geforderte Preis wettbewerbsfähig ist und mit den Markttrends übereinstimmt. Suchen Sie nach Mustern in Preisgestaltung und Funktionen, um eine fundierte Entscheidung zu treffen.
Beim Online-Kauf eines Fahrzeugs ist es wichtig, den Ruf des Verkäufers zu überprüfen, indem Sie nach positiven Bewertungen und einer Geschichte erfolgreicher Transaktionen suchen. Die „Händlerstatus“-Symbole von Truck1 bieten wertvolle Einblicke basierend auf Erfahrungen mit dem Händler und helfen, die Zuverlässigkeit des Verkäufers zu beurteilen.
Wenn möglich, sollten Sie es priorisieren, den Verkäufer zu besuchen und das Fahrzeug persönlich zu inspizieren. Wenn möglich, arrangieren Sie eine Kaufvorinspektion des Fahrzeugs durch eine Drittpartei. Dies kann potenzielle Probleme aufdecken, die auf Fotos nicht sichtbar oder in der Anzeige nicht erwähnt sind.
Stellen Sie sicher, dass Sie einen detaillierten Kaufvertrag unterzeichnen, um Ihre Rechte zu schützen und die Bedingungen der Transaktion zu bestätigen.
Fahren Sie mit der Zahlung erst fort, nachdem der Kaufvertrag unterzeichnet wurde. Eine kleine Anzahlung zur Reservierung des Fahrzeugs ist üblich, sollte jedoch mit Vorsicht vorgenommen werden.
Bestätigen Sie die Echtheit des Verkäufers, indem Sie detaillierte Informationen sammeln und Bewertungen oder Berichte von früheren Käufern prüfen. Suchen Sie nach Händler-Icons auf Truck1, um verifizierte Verkäufer zu identifizieren und ein sichereres Kauferlebnis zu gewährleisten.
Vergleichen Sie die Preise ähnlicher Fahrzeuge mit dem Vergleichstool, um ungewöhnliche Angebote zu identifizieren. Seien Sie vorsichtig bei Preisen, die erheblich vom Marktstandard abweichen, da sie auf mögliche Probleme oder Betrug hinweisen könnten.
Bitten Sie den Verkäufer um Details zur Fahrzeughistorie und zu den Nutzungsbedingungen. Ein seriöser Verkäufer wird transparent sein und bereit, diese Informationen zu teilen, um Ihnen zu helfen, zu beurteilen, ob das Fahrzeug Ihren Anforderungen entspricht.
Vereinbaren Sie eine Besichtigung und Probefahrt des Fahrzeugs, um Abnutzungserscheinungen oder Schäden zu erkennen. Ziehen Sie eine Vorabinspektion durch einen professionellen Mechaniker in Betracht, um versteckte Probleme aufzudecken und die Sicherheit und Zuverlässigkeit des Fahrzeugs zu gewährleisten.
Stellen Sie vor jeder Transaktion sicher, dass eine detaillierte Verkaufsvereinbarung vorliegt, die alle Bedingungen festlegt. Verwenden Sie sichere Zahlungsmethoden und überprüfen Sie die Transaktionsdetails, um sich vor Betrug zu schützen.

























